VERESEGYHÁZON LIGETEKBEN NAPPALI + 4 SZOBÁS 119nm-es ÖNÁLLÓ CSALÁDI HÁZ 765nm-es TELKEN ELADÓ!
Veresegyház ligetek legfiatalabb részén eladó egy 119nm-es újépítésű CSALÁDI HÁZ. Műszaki tartalma a 2021-es energetikai besorolásoknak és követelményeknek megfelelően, minőségi anyagok felhasználásával kerül megépítésre. Alternatív hűtés-fűtés kiegészítésként inverteres klíma kerül beépítésre.
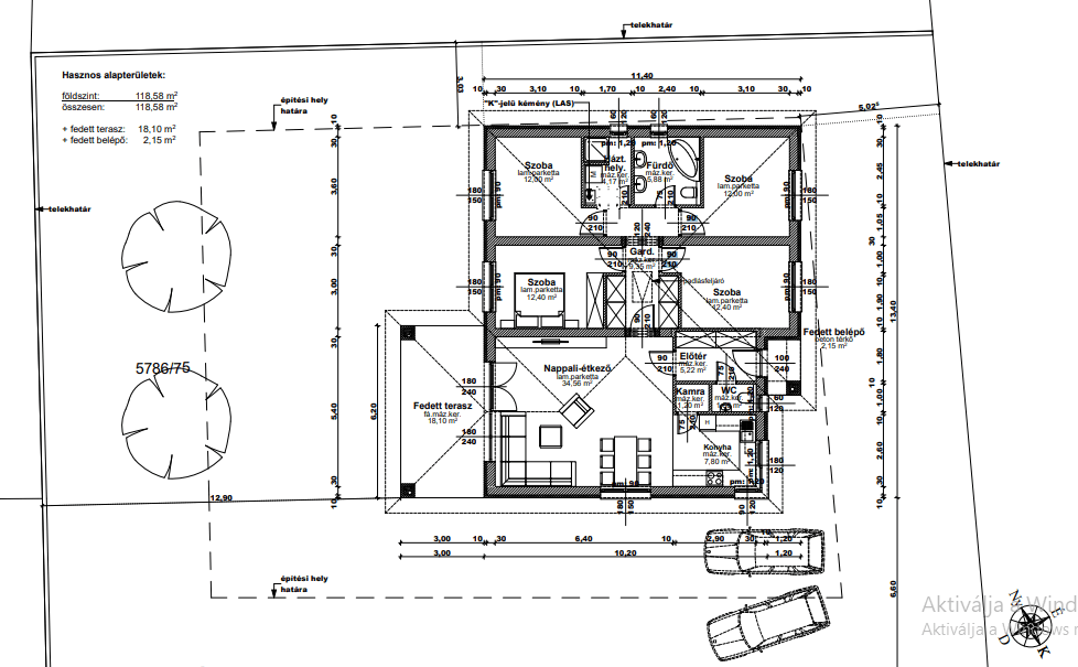
A 119 nm-es házban tágas belső terek: 42 nm-es amerikai konyhás nappali, kamra, 4 teljes értékű háló, 1 fürdő, 1 külön mosdó, és mosókonyha található 765 nm-es telekterületen. Ideális tájolásának köszönhetően körbesüti a nap.
Az ideális hőmérsékletért és melegvízért a beépítésre kerülő hőszivattyúról fűtött indirekt fűtésű meleg víz tároló felel padlófűtés kiépítésével és kedvezményes KW/H díjelszámolással (H-Tarifás).
Külső szigetelés 10 cm-es grafitos szigetelés. Az ingatlan a mai építészeti és használatbavételi követelményeknek minden tekintetben megfelel.
Az igény szerinti befejezésnek köszönhetően a komplett belső kialakítás a vevő igényei szerint készül. A fenti ár tartalmazza az ingatlan kulcsrakész állapotban történő átadását a műszaki leírásban meghatározottak szerint, választható burkolatokkal, szaniterekkel és beltéri nyílászárókkal.
Jelenleg aktuális állami támogatások és kedvezményes kamattámogatott hitelek felvehetők, 36 bank közül ingyenes és díjmentes szolgáltatás keretein belül szintén tudunk segíteni.
Ára: 76.900.000.-Ft
10%-kal foglalható fizetési ütemezés személyes egyeztetés alapján.
Várható átadás: 2021 III. negyedév
További segítséget nyújtunk hitelválasztásban, CSOK ügyintézésben, jogi kérdésekben és lakberendezéssel kapcsolatos kérdésekben is állunk rendelkezésére.








